接手一個新菜市場項目時,很多甲方不清楚整個過程要經歷哪些階段。有的以為畫幾張效果圖就能開工,有的又擔心漏掉什么重要環節。今天就把我們做新建菜市場設計的完整流程捋一捋,讓準備建市場的朋友心里有個底。


第一步:前期調研與定位分析
拿到項目后,我們首先要摸清楚這塊地周邊的實際情況。周圍住的是什么人群?老年居民多還是年輕家庭多?方圓兩公里有沒有競品?日均人流量大概多少?這些數據直接影響市場的規模、檔次和功能配置。
舉個例子,如果周邊三公里內沒有像樣的生鮮采購點,那這個市場就得承擔起片區“菜籃子”的功能,生鮮品類要齊全,攤位數量要充足。如果是高端住宅區環繞,那市場的動線設計和裝修風格就要往精致方向走,甚至可以考慮增加一些熟食、簡餐的配套。
這個階段也會和甲方反復溝通他們對市場的預期,是走平價親民路線,還是想打造網紅打卡地?定位清楚了,后續的設計才不會跑偏。
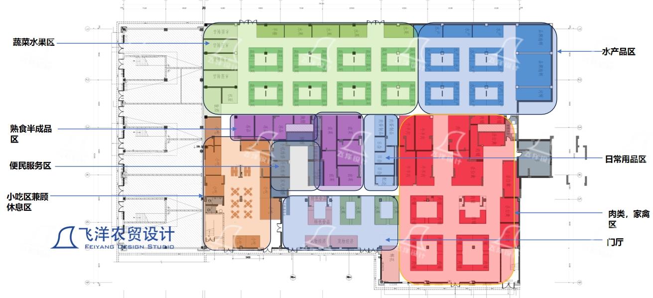
第二步:平面布局與動線規劃
定位確定后,進入平面規劃階段。這一步的核心是動線——顧客怎么走,商戶怎么進貨,攤位怎么擺?
顧客主通道一般保證兩輛買菜推車能錯身。生鮮品類靠里放,熟食鹵味靠外,這是基本邏輯。水產區要單獨劃片,因為地面濕滑,排水量大,不能放在主通道附近形成安全隱患。
進貨通道和營業時間要錯開,大多數市場要求早上七點前完成進貨。垃圾轉運點最好靠近水產區和肉類區,這兩個區域廢棄物最多,動線短能減少二次污染。


第三步:效果圖與施工圖深化
平面方案確認后,才開始做效果圖和施工圖。效果圖主要是讓甲方直觀看到市場長什么樣:吊頂做什么造型、燈光怎么布置、攤位招牌是什么風格。
施工圖包括電氣系統圖、給排水管網圖、通風排煙圖、攤位節點大樣圖等等。我們見過不少市場因為施工圖深度不夠,施工過程中頻繁改圖,既耽誤工期又增加成本。
第四步:施工配合與駐場服務
圖紙交出去不代表設計工作結束了。施工階段我們會安排設計師全方面配合,一方面是解答施工隊遇到的技術問題,另一方面是確保施工效果和設計圖紙一致。一個好的菜市場設計,一定是設計和施工緊密配合做出來的。


第五步:招商運營跟進
市場建好后,招商過程中可能還會做一些微調。比如某個品類的攤位需求量特別大,原先規劃的攤位數量不夠,就需要在保證動線合理的條件下重新劃分。或者商戶入駐時對操作間的布局有個性化需求,也需要做一些局部改動。
我們在服務過的項目中,通常會協助甲方完成這個階段的調整,確保市場開業時各個功能區塊都能高效運轉。
總結
新建菜市場的設計周期,從調研到施工圖交付一般需要兩到三個月,施工階段根據項目體量大小另算。如果大家正在籌備新建市場,對其中某個環節想了解得更細一些,歡迎隨時和我們溝通。
上一篇:農貿市場設計:前期調研的黃金7問 ??? 下一篇:杭州菜市場設計費用:市場行情與報價參考
