【飛洋設計案例】—— 郴州金科郡農貿市場
項目名稱:金科郡農貿市場市場面積:約3500平方米,位于建筑一層
項目地點:湖南省郴州市北湖區寒溪路
設計單位:飛洋建筑設計/飛洋市集設計研究
服務范圍:市場調研、平面布局、效果方案設計、施工圖設計
【一句話項目概括】成熟住宅小區商業裙房內新建的農貿市場
【項目概況】金科郡農貿市場位于湖南省郴州市寒溪路核心地段,緊鄰成熟大型社區(金科郡小區)與小學,坐擁十字路口黃金位置,具備天然的高密度客流基礎與絕佳交通可視性。飛洋建筑設計公司受委托進行整體規劃設計,目標是將地理優勢轉化為核心競爭力,打造一個便捷、活力、智慧的社區生活中心。
【核心挑戰】如何精準服務學生家長與社區居民兩大核心客群?如何高效轉化巨大的人流量?如何提升市場辨識度與體驗感?
【優勢分析】
1、緊挨成熟小區、毗鄰小學,周邊常住人口眾多
2、市場入口緊臨十字路口,交通便利、辨識度高

(如上圖所示,項目位于寒溪陸路十字路口)
【難點分析】
1、戶型不規則,剪力墻較多,導致室內空間幾乎被一分為二
(如上圖所示,室內中間的縱向區域幾乎布滿了結構復雜的剪力墻)
2、市場面積3500㎡純若招生鮮攤位則招商壓力較大
基于挖掘到的以上兩大優勢和兩大痛點,我們將有針對性地開展調研和設計工作,并按照以下思路來放大優勢和規避難點。
【設計策略(放大優勢)】
1、立體動線,高效轉化“十字路口”與“學校”流量:
2、主入口強化: 面向十字路口設計寬敞(≥5米)、帶醒目雨棚的主入口,提升視覺吸引力和全天候通行便利性。
3、學生/家長動線: 開辟防滑安全步道直連小學入口,設置家長等候區(含座椅、菜價屏)及非機動車充電停車區(200+位)。
業態臨機布局: 入口處規劃“早餐快線”(粉面、鮮奶、預制菜),滿足學生、上班族“即買即走”需求。
4、場景化布局,深挖“社區”與“家庭”需求: 設置“晚餐套餐區”(凈菜+調料+食譜)、“學生營養專區”(有機菜+配菜建議),毗鄰代加工廚房。
5、便民集成: 設置“社區共享客廳”(縫補、鑰匙鋪、公平秤、健康驛站),增強社區粘性。
|優勢最大化|
成功將“十字路口辨識度”轉化為便捷高效的入口體驗,將“學校/社區人流”轉化為精準消費場景。
|體驗升級|
打造了安全、舒適、智慧化的購物環境,顯著提升居民滿意度與復購率。
|社區融合|
超越傳統菜場功能,成為集購物、便民服務、社區互動于一體的生活樞紐。
|智慧標桿|
引入的智慧管理系統為商戶賦能(數據指導經營)、為管理提效(遠程監控、預警),樹立區域農貿升級樣板。
【設計策略(規避難點)】
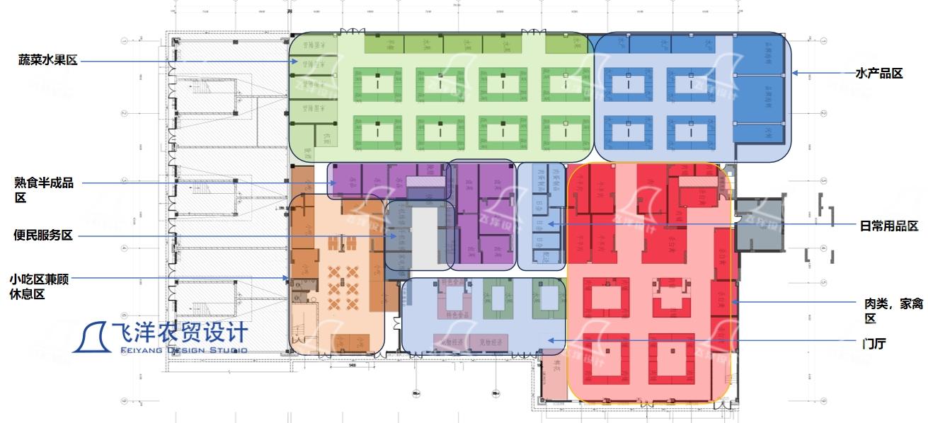
“內外左右環線”動線設計:對于無法強行打通的剪力墻,我們選擇圍繞核心剪力墻結構,規劃“內環”(剪力墻內部圍合區)與“外環”(相對敞開的區域)兩條內外環線;再根據被剪力墻所分割的兩側打造“左環”(左半場)和“右環”(右半場)。
首先將左右兩個半場的業態進行區分設置,分別設為生鮮區與餐飲區,既在一定程度上豐富了招商業態和消費層級,緩解招商壓力,又同時讓兩個區域的物理分離顯得更加自然,降低同品類購物穿行的可能性,同一個大類就在同一片完整區域內完成全部購物。
再次是內外環,在內環,也就是圍合區域內,相對可達性較弱的位置,設置為配套商業及配套服務用房,例如便民區、辦公區;在外環,也就是敞開區域,設置需求量更高、交易頻率更頻繁的業態,例如蔬菜水果等常規商業業態。
化解“招商壓力”:復合業態,提升坪效
我們采用“1+N”業態組合: 核心(1): 集約化布局高頻剛需生鮮攤位(蔬菜、肉、水產),確保基礎功能高效覆蓋(約占50%面積)。
增值(N): 重點引入高粘性、高附加值業態填補剩余空間。
有了以上基礎思路,我們高效、準確地完成了平面規劃和業態落位,接下來就是裝修效果方案的設計。
金科郡農貿市場裝修設計深度植根郴州地域文脈,創新融合三大核心元素:

自然文化: 運用本土竹木、石材及山水意象的曲線造型,營造清新、生態的購物氛圍,呼應郴州綠色山水底蘊。
古鎮文化: 提取當地古鎮坡屋頂、青磚黛瓦的肌理與色彩,以現代手法演繹于空間界面與攤位造型,延續歷史記憶。
戲曲文化: 巧妙融入地方戲曲的流線形態與服飾色彩(如點絳紅、靛青),通過藝術燈具、標識系統點睛,增添靈動韻律。
整體以現代簡約手法呈現,打造兼具地域辨識度、現代舒適感與文化親和力的社區市集空間。
設計風格成品如下,盡情欣賞:





【總結】
金科郡農貿市場的設計,不僅巧妙化解了空間局限與招商壓力,更將十字路口的黃金位置與社區人流優勢發揮到極致。通過融合郴州自然山水、古鎮肌理與戲曲韻律的現代演繹,我們成功打造了一個高效便捷、充滿地域溫度與活力的社區生活樞紐。這里,傳統市集的煙火氣與現代生活的舒適感完美共生,成為居民“家門口的美好生活”生動寫照。
